Are you interested in inspecting this property?
Get in touch to request an inspection.
House for Sale in Henderson
Unlock High-Yield Potential: 997m² Prime THAB Land
- 3 Beds
- 1 Bath
- 2 Cars
Attention Developers and Land Bankers: Opportunities of this scale and calibre are becoming increasingly rare in the heart of Henderson. Positioned on a commanding 997sqm (more or less) freehold section, 18 Millbrook Road is a blue-chip development site primed for a high-density transformation.
Project Highlights:
- 997sqm Freehold Land with wide road frontage.
- THAB Zoning: Maximum density for apartments or terraced housing.
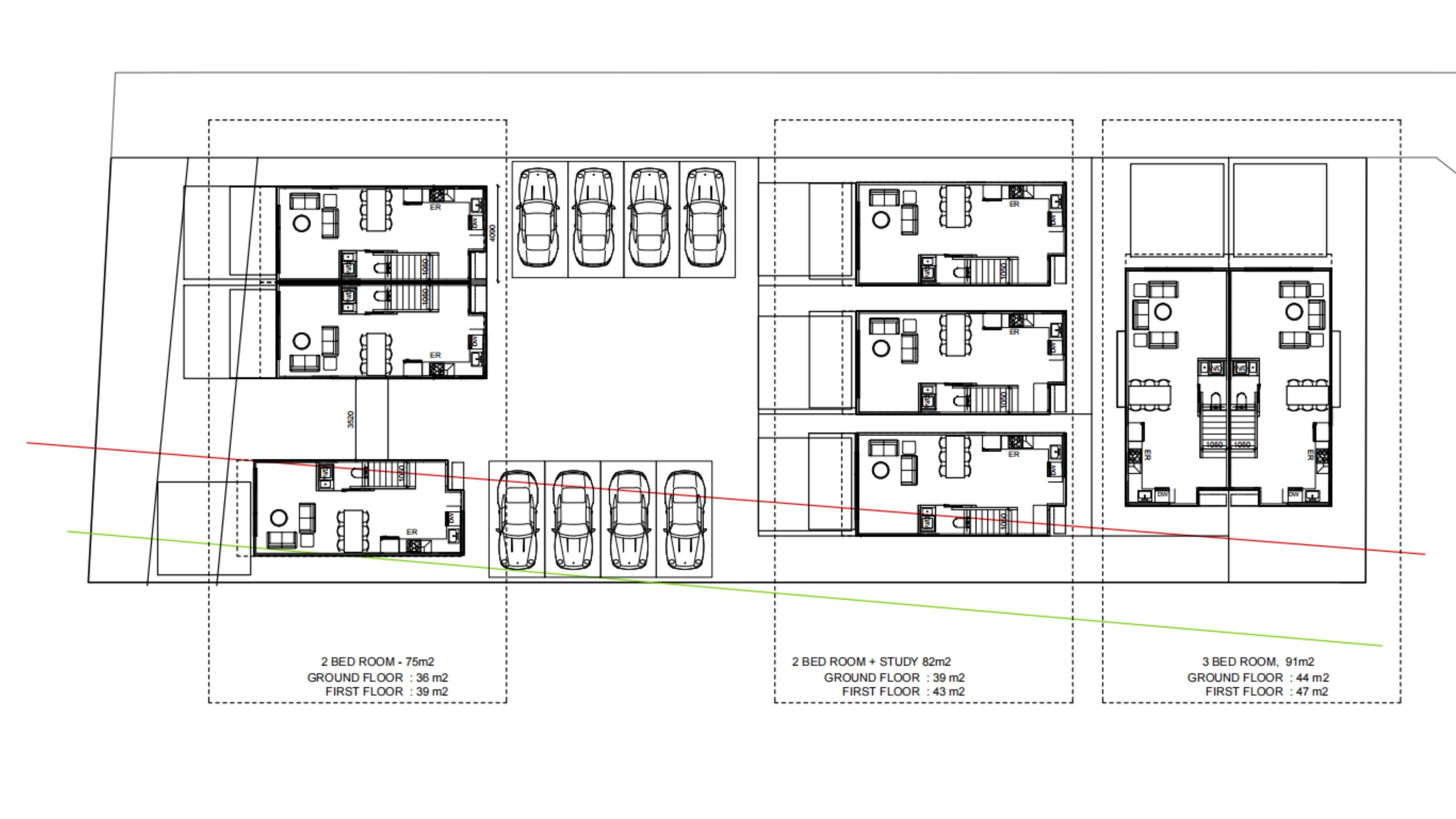
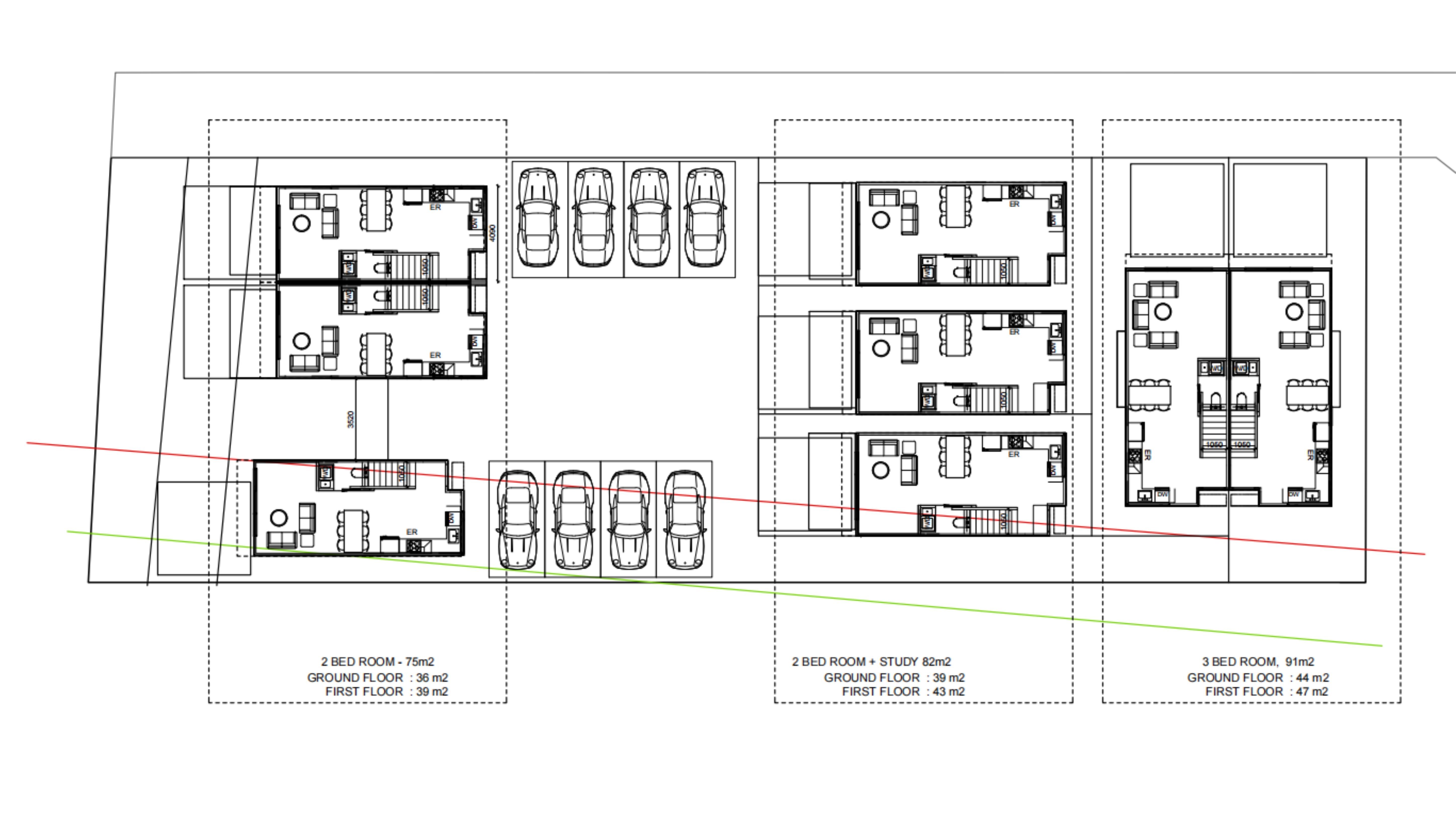
- Concept Plan Included: Fast-track your development timeline.
- Existing Asset: A solid 1960s brick home currently on-site provides holding income while you finalize your plans.
Zoned for Residential Terrace Housing and Apartment Buildings (THAB), this property offers the highest level of intensification available under the Auckland Unitary Plan. This is your chance to maximize your ROI! THAB zoning provides the density and height allowances needed to make this project a flagship success.
We know that in development, time is money. To help you hit the ground running, a preliminary concept plan has been done. This provides a clear vision of what can be achieved on-site, allowing you to move quickly through your due diligence and start the consenting process with confidence.
Future residents will flock to this location for its "walk-to-everything" convenience:
• Transit-Oriented: Mere minutes from Henderson Train Station and major bus hubs for an easy commute.
• Retail & Lifestyle: A short stroll to WestCity Waitakere, supermarkets, and the vibrant Henderson central business district.
• High Demand: Henderson continues to be a high-growth corridor with a consistent appetite for quality, modern housing.
Don't wait for the next cycle-secure one of the best development footprints in West Auckland today.
ALL CONJUNCTIONALS WELCOME, so agents, bring your buyers!
Contact Ian Yu 021 159 2078 TODAY to secure this Golden Opportunity!
Pending RC, BC, EPA
ELL34935
160m²
977m² / 0.24 acres
2 garage spaces
3
1
Agents
- Loading...
Loan Market
Loan Market mortgage brokers aren’t owned by a bank, they work for you. With access to over 20 lenders they’ll work with you to find a competitive loan to suit your needs.
