Are you interested in inspecting this property?
Get in touch to request an inspection.
House for Sale in Te Atatu South
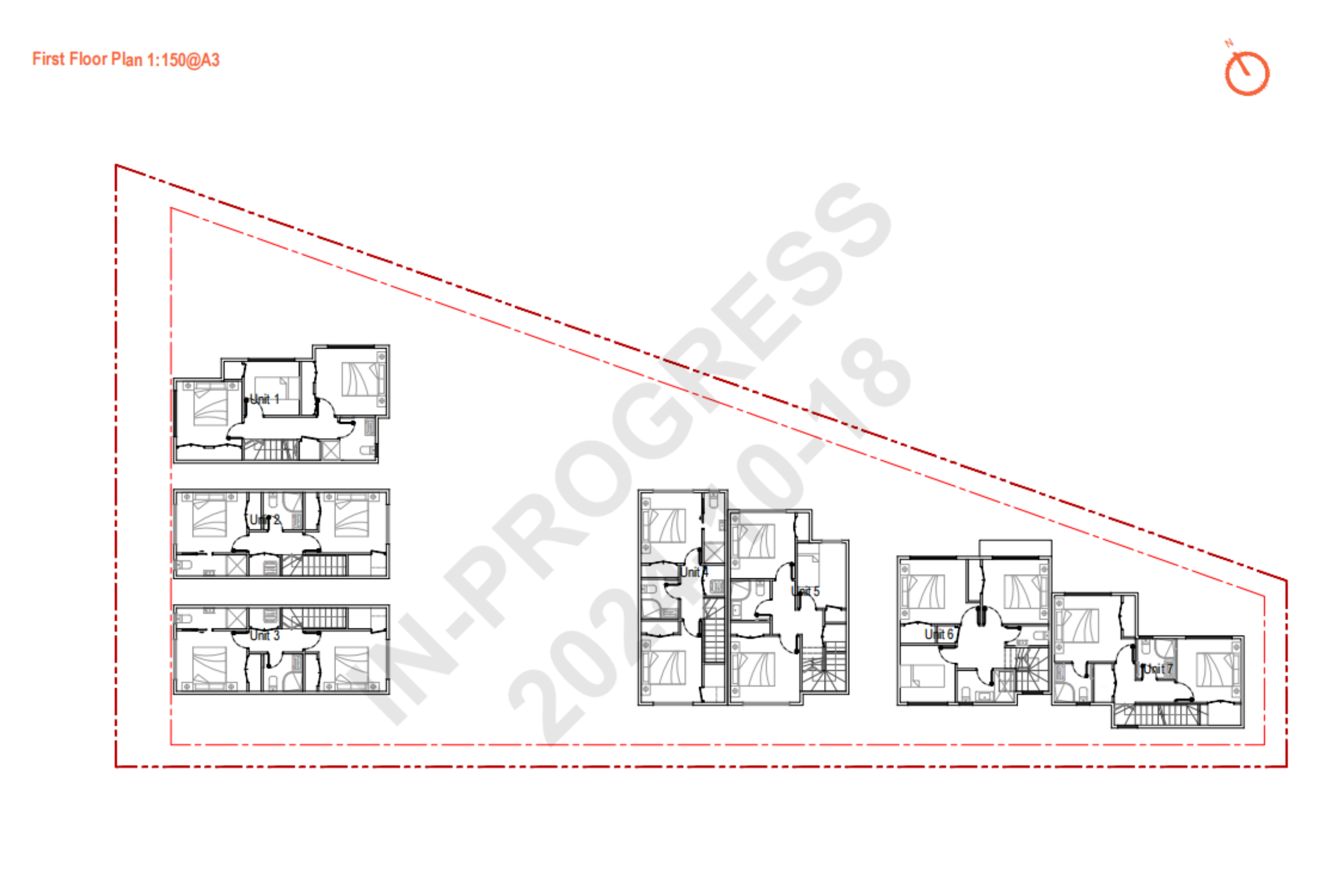
Ready to Build? Plans Available for 7 Lots!
- 5 Beds
- 3 Baths
- 1 Car
Sitting on a generous 951sqm plot, plans are available to build 7 brand new homes on this Residential-Mixed Housing Urban Zone near-level site!
Three standalone houses and four duplexes, all two-storeys. Practical design, simple to build, and easy to sell!
The RC is currently in process, and this project can be settled with the RC alone, with both the RC and EPA, or even with an approved BC.
Options are available to purchase this property alone or together with the neighbouring 67 Mcleod Rd.
Here is the listing of 67 Mcleod Rd: https://rwellerslie.co.nz/properties/residential-for-sale/waitakere-city/te-atatu-south-0602/house/3400453
Enjoy quick access to motorway junctions connecting to the North Shore and CBD. The location is also within walking distance to several primary and secondary schools, parks, and recreational facilities. Plus, it's close to a variety of urban amenities, including cafes, restaurants, and shopping centers like WestCity, Glendene, Westgate, and Kmart Henderson.
Don't delay, Contact Ian 021 159 2078 today!
We welcome all conjunctional sales. Agents, bring your buyers!
ELL34746
111m²
951m² / 0.23 acres
1 garage space
5
3
Agents
- Loading...
Loan Market
Loan Market mortgage brokers aren’t owned by a bank, they work for you. With access to over 20 lenders they’ll work with you to find a competitive loan to suit your needs.
